Не упусти свой шанс! Последние акции от застройщиков  ▼

Продается студия, Дубининская ул., 59А

18 400 000 Р

Дубининская ул.59А

Дата публикации: 18 октября 2025

Дата обновления: 21 октября 2025

Телефон: 
Показать телефон

+7 (499) 372-92-13

Агентство:  МИЭЛЬ

От застройщика: 0 квартир в продаже

Этаж: 2 / 17

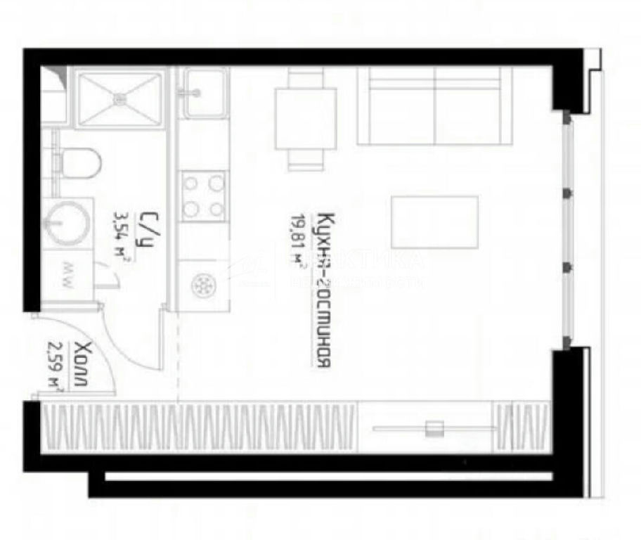
Общая: 25,8 м2

Жилая: 19,8 м2

Кухня: 4 м2

Комнаты: не указано

Балкон/лоджия: не указано

Лифт: не указано

Окна: окна на улицу

Санузел: совмещенный

Мусоропровод: не указано

Состояние квартиры: дизайнерский ремонт

Тип дома: монолитно-кирпичный

Год постройки: 2023

Территория: не указано

Парковка: не указано

Статус сделки: продажа

Сделка: прямая продажа

Собственность: не указано

Основание права собственности: не указано

Описание

Код объекта: 1860182. Готовая для проживания студия в квартале бизнес-класса ЖК "Павелецкая Сити". Светлая и просторная комната с большими окнами и уютным интерьером. Студия идеально подойдет как для проживания небольшой семьи, так и для инвестиций. Она может стать вашим уютным гнездышком или приносить стабильный доход от аренды. Прекрасное состояние и стильное оформление, качественный материалы и авторский дизайн. Полностью меблирована, вся мебель и техника остается покупателю (диван, кухонный гарнитур, прихожая, тумба, вместительный шкаф высотой 2,4 м с выдвижными ящиками, сушилка, гладильная доска, кондиционер, проточный водонагреватель, эл плита, минипечка, микроволновка, холодильник, чайник, стиральная машина, смарт ТВ, диагональ 81 см.). Студия расположена в корпусе "Мэрилин" - это самый малоэтажный корпус из всего комплекса, что обеспечивает тишину и покой жильцам, на этаже всего 5 квартир. Из окон открывается вид на улицу, а не на соседние башни. ЖК "Павелецкая сити" - жилой комплекс бизнес-класса, который становится визитной карточкой района и воплощением духа современного динамичного мегаполиса. В соответствии с концепцией "вертикального города" здесь предусмотрена вся необходимая инфраструктура: кафе и супермаркеты, центр раннего развития и фитнес- центр, детская площадка. В самом доме расположены лапомойка и просторная колясочная. Прекрасная транспортная доступность, 15 минут пешком до метро Павелецкая, 20 мин пешком до метро Серпуховская, Добрынинская и Тульская. 5 минут на автомобиле до Садового кольца и ТТК, 8 минут до Кремля. В 100 метрах от дома расположена остановка трамвая, 2 остановки до метро, 5 минут в пути. Свободная продажа, 1 взрослый собственник, квартира приобреталась у застройщика. Возможна ипотека с особыми условиями для клиентов МИЭЛЬ от банков-партнеров.

Квартира на карте

ПанорамыКарта
Спецпредложения
Добавить объявление